服务电话(移):17319309550
液力端
机械驱动隔膜,物料侧无隔膜护盘,便于物料通过
PVC\PVDF\316SS\高粘度、浆料等多种泵头材质,适合各种物料
自清洗单向阀结构
驱动端
可变偏心机构调节,确保流量脉动平缓变化
增强型结构设计,适合苛刻运行环境
耐磨球轴承, 使工作更稳定
油浴润滑,驱动部件工作寿命长
在停机或运行状态下均可流量调节, 调节方式可选手动、 电动或变频
控制方式
电动冲程控制器,接受外部控制信号,调节冲程长度
供电电源:220V-50HZ-单相
输入信号:4-20mA模拟信号
输出信号:4-20mA/1-5V模拟信号,供记录显示和控制系统使用
变频控制器,接受外部控制信号,调节冲程速度
供电电源:220V-50HZ-单相/380V-50Hz-三相
输入信号:4-20mA模拟信号
马达控制,以“开/停"方式控制三相电机,调节输出流量
供电电源:200-240V/50/60Hz/单相
控制方式:可接受4-20mA模拟信号、外部脉冲信号或手动调节
可提供选项
双隔膜泵头
双隔膜泵头破裂压力表检测及压力开关检测
冲程计数传感器
PNP输出/NPN输出/继电器输出
附件
提供系统所需附件如:过滤器、校正柱、缓冲器、安全阀和背压阀等,其中安全阀为必选项。
(GM0002~GM0050范围PVC/PVDF泵头的泵,随计量泵提供注射阀、脚阀、配重和6米软管,高粘度泵头除外)
标准配置电机性能参数
供电电源:380V-50Hz-三相/220V-50Hz-单相
防护等级:IP55
绝缘等级:F级
另有防爆型电机、60Hz电机可选择。所有电机符合国际电工协会IEC标准或美国国家电气委员会NEC标准
单头最大流量:1800L/H
最高排出压力:12bar
调节比10:1,稳态精度±2%
吸入提升高度可达3米水柱
最大入口压力为2bar
允许物料的最高温度为40℃
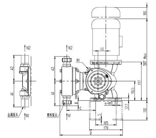
G系列机械隔膜计量泵外形图
GM泵
市政、工业水与废水、泳池等各种水处理过程
好评度 | 商品满意度 | 服务满意度 | 发货满意度 |
"米顿罗 GM系列机械隔膜计量泵,GM0005PR1MNN,PVC液力端,插接6X12软管,250W,380V"商品可能已被商家删除,您可查看其他相似商品!
相似产品推荐